.

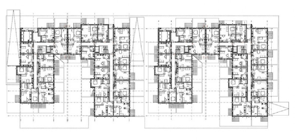
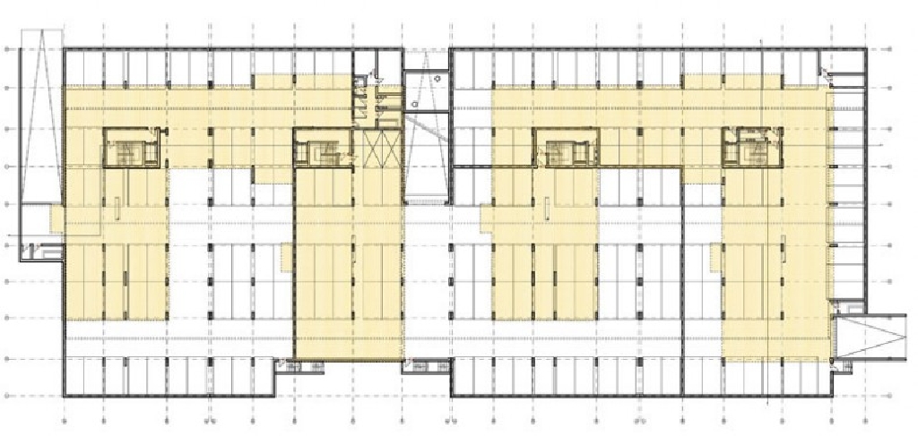
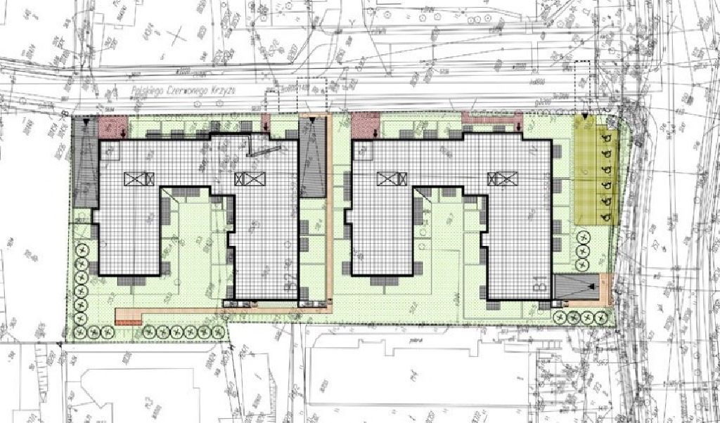
ZESPÓŁ ZABUDOWY WIELORODZINNEJ W TORUNIU

lokalizacja: Toruń, ul. Grudziądzka i PCK
typ: projekt budowlano-wykonawczy
inwestor: MURAPOL S.A.
autorzy: Marcin Jagiełło, Janek Juraszczyk, Piotr Sobociński
data: 2015

pow. zabudowy: 2 432 m2
pow. całkowita: 14 137 m2
pow. użytkowa: 7 788 m2
pow. użytkowa mieszkań: 6 874 m2