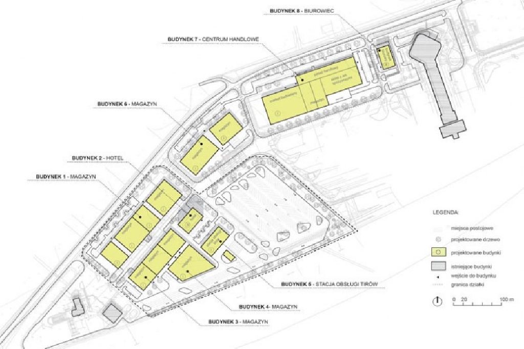
ROZBUDOWA TERMINALU SAMOCHODOWEGO W KOROSZCZYNIE
lokalizacja: Koroszczyn
typ: projekt koncepcyjny
inwestor: Polskie Konsorcjum Gospodarcze S.A.
autorzy: Marcin Jagiełło, Janusz Kubalańca
data: 2015
pow. terenu opracowania: 14,1 ha
pow. użytkowa: 46 300 m2










