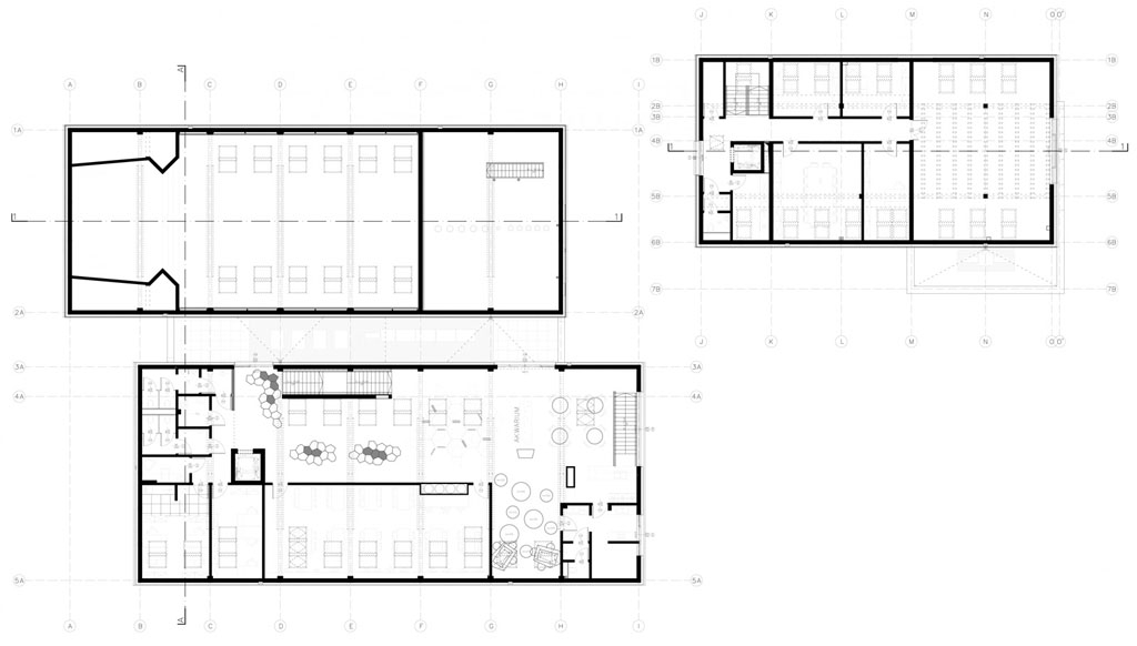
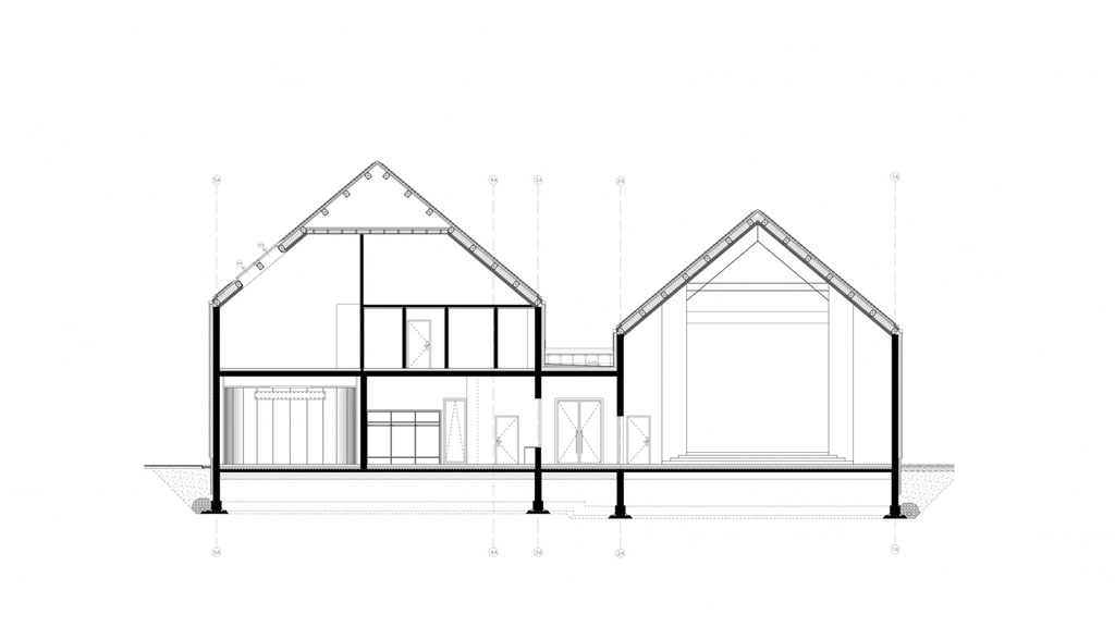
CENTRUM EDUKACJI EKOLOGICZNEJ W WIŚLE
lokalizacja: Wisła, ul. Wyzwolenia
powierzchnia: ~ 1775 m2
typ: projekt budowlano-wykonawczy
inwestor: Gmina Wisła
autorzy: Marcin Jagiełło, Pamela Goliszek - Czuba, Kasia Biernat
data: projekt 2017, realizacja 2018/2019











