.

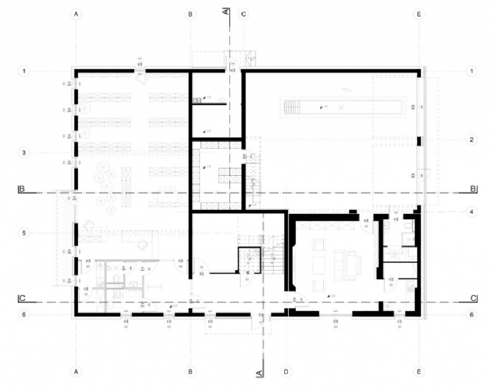
BUDYNEK OSP RYBNIK WRAZ Z FILIĄ BIBLIOTEKI MIEJSKIEJ

lokalizacja: Rybnik, ul. Alojzego Szewczyka
powierzchnia: ~ 585 m2
typ: projekt budowlano – wykonawczy
inwestor: Gmina Rybnik
autorzy: Marcin Jagiełło, Pamela Goliszek - Czuba, Kasia Biernat
data: projekt 2017, realizacja 2018